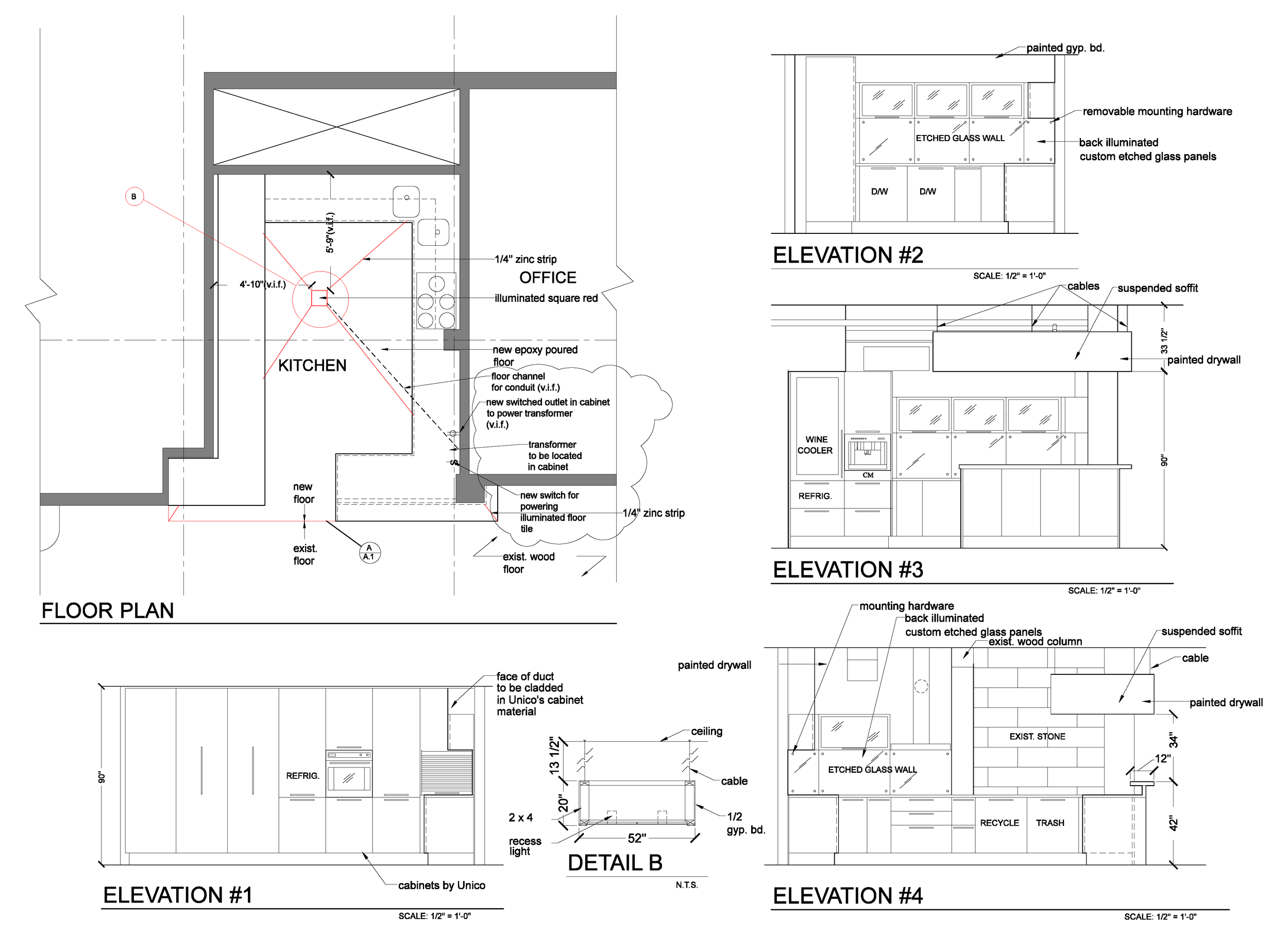
Red Car

Type: Commercial - Office kitchen

Location: Chicago

This renovation transforms the traditional corporate kitchen into a social hub. The Ferrari Red cabinetry, polished concrete floor and it’s “RED” signature square in the middle. This provides a sharp sensory contrast against the building’s rugged, industrial shell. The space transitions seamlessly from daily utility to high-energy evening events. By blending futuristic finishes with clever design.