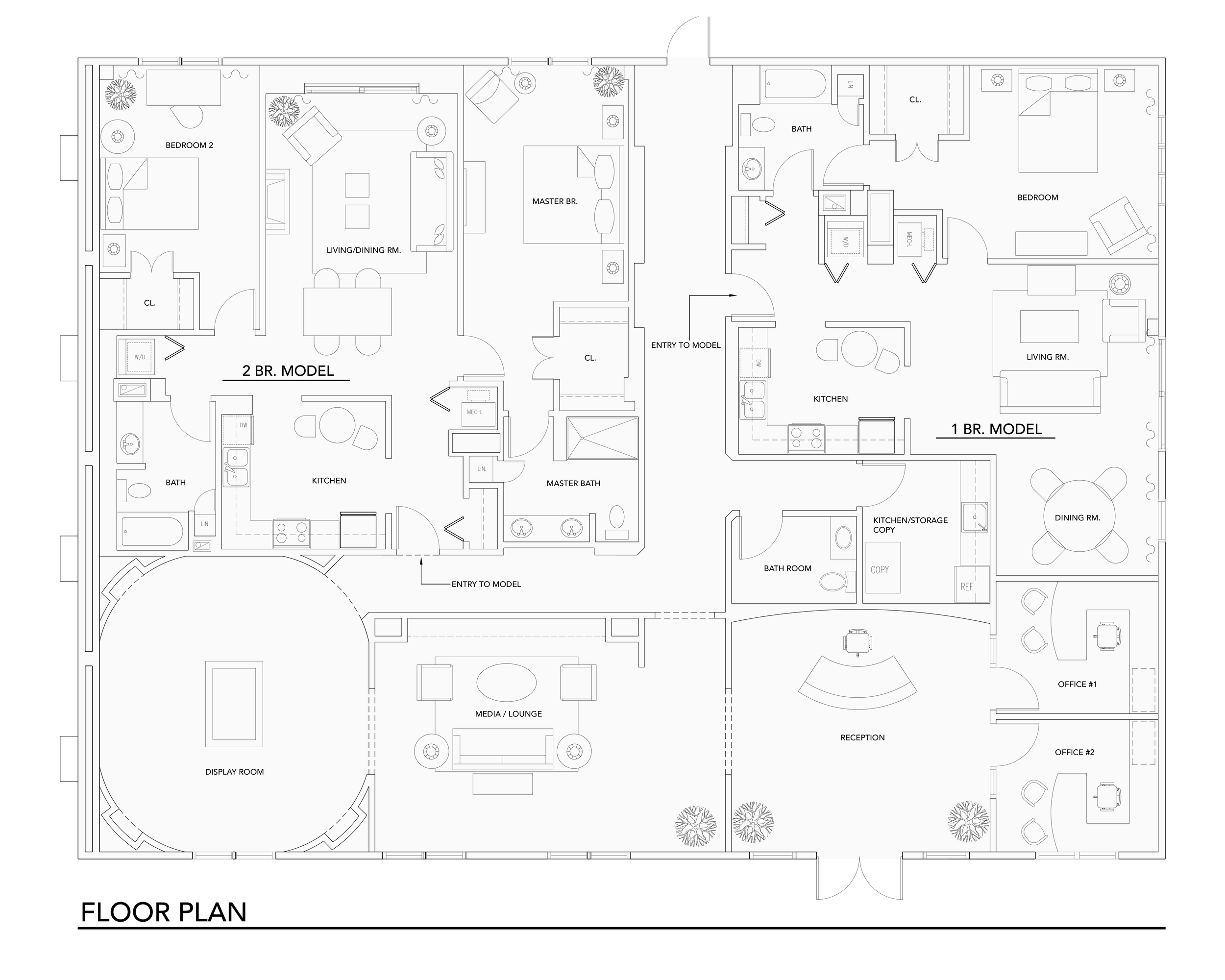
Medinah Sales Office

Type: Commercial - Sales Office & Model

Location: Bloomingdale, Il.

The project encompasses the design and construction of a 3,500 sq. ft. sales office tailored to create an inviting environment for prospective buyers. Central to the space is a full-size furnished model that showcases the functionality and appeal of the properties. The design incorporates custom millwork, high-quality furniture, and carefully designed sales graphics, which collectively enhance the overall real estate buying experience. This thoughtfully curated atmosphere aims to engage visitors, allowing them to visualize their potential investment in a compelling and sophisticated setting.