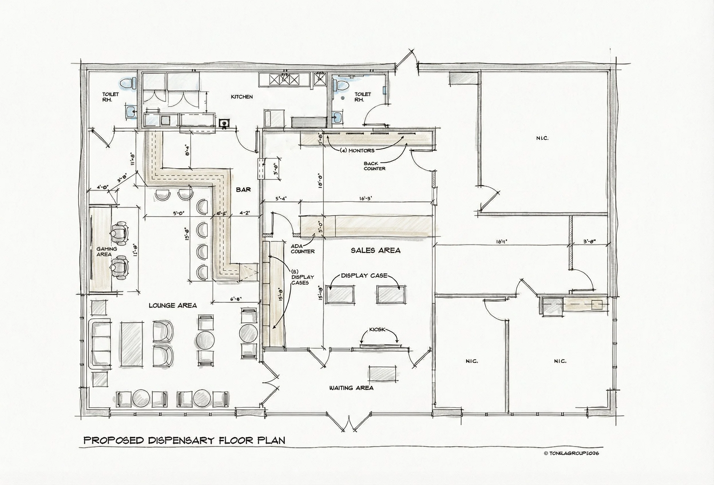
drecisco Type: Commercial - Cannabis ShopLocation: Harvard, Il.Description: 2,400 sq. ft. Commercial Build-Out (in progress) Home Home