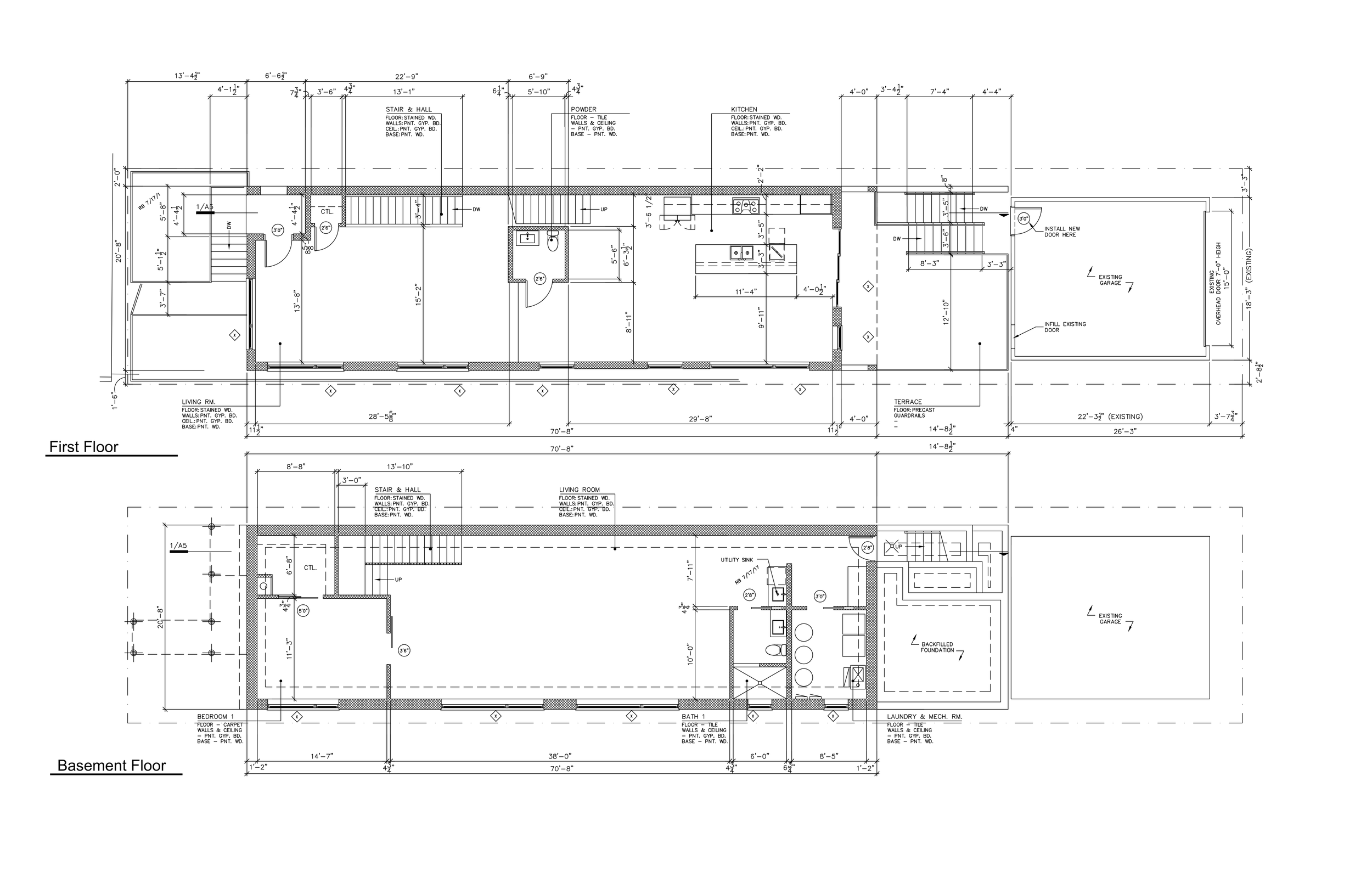
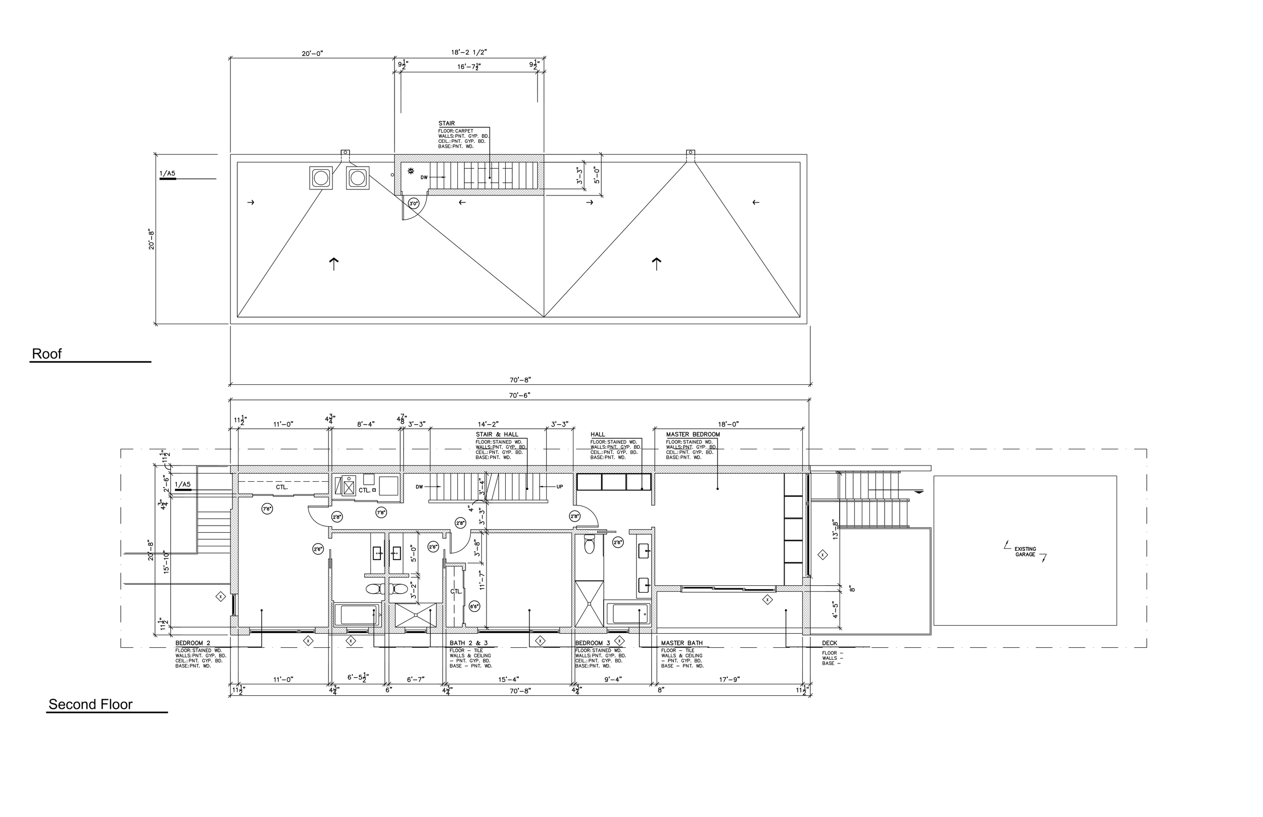
Banfield Residence
Type: Residential
Location: Minneapolis
A urban residence on a narrow corner lot that maximizes natural light without compromising privacy. We utilized strategic corner-glazing to pull light deep into the floor plate, paired with a bronze cladding and an elevated terrace. This architectural shift allows the home to engage with the surrounding tree canopy while remaining a secure, secluded retreat at street level.