DiChiara Louie Residence

Type: Residential Gut Re-hab

Location: Chicago

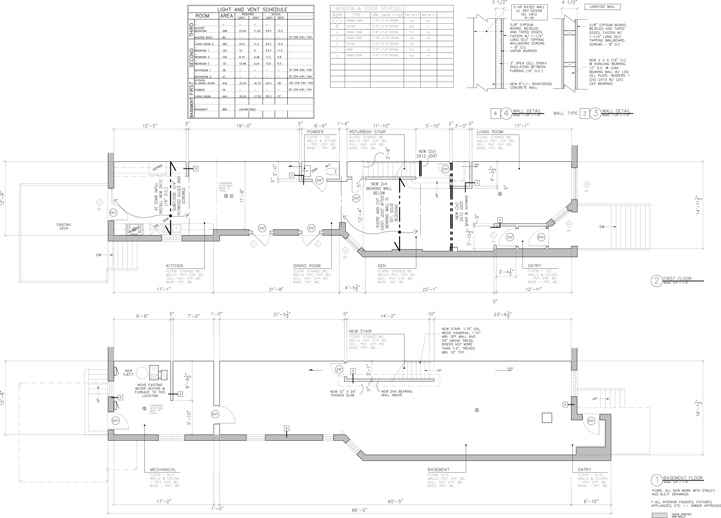
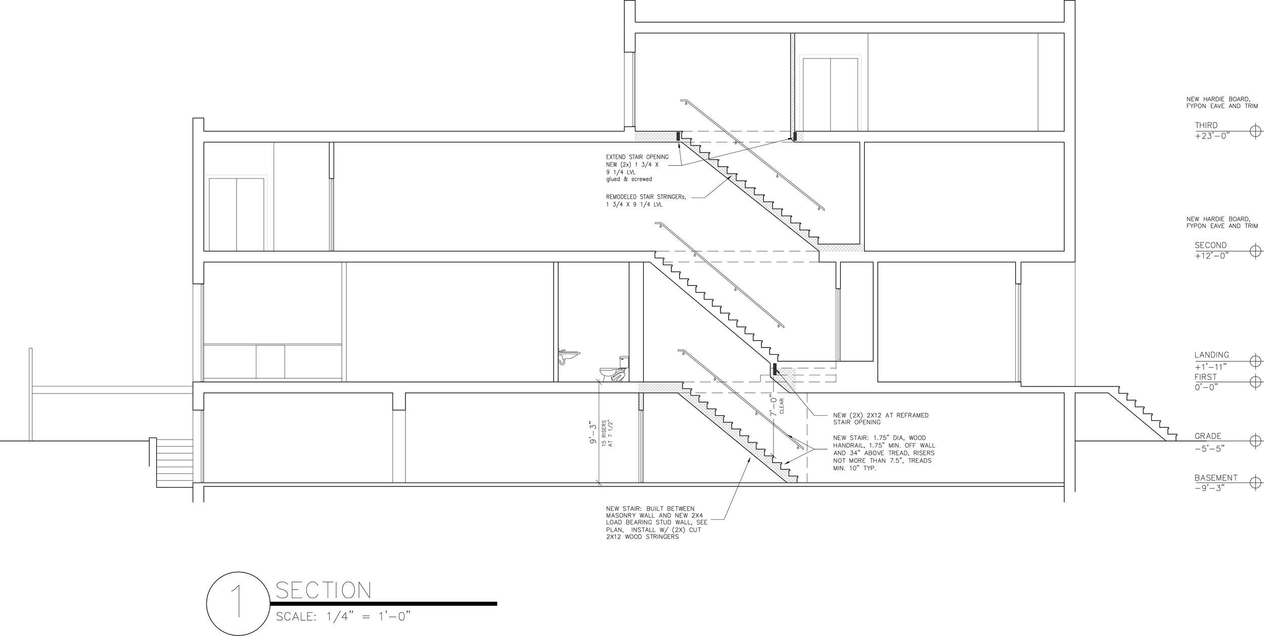
The project located in the historic Bronzeville neighborhood of Chicago. The goal is to enhance the aesthetic appeal and functionality of the home while preserving its classic Victorian charm and respecting the community's rich cultural heritage. This transformation involves modern updates that seamlessly integrate with the original features, creating a harmonious balance that reflects both the history and the contemporary lifestyle of its residents. Through careful planning and execution, the renovation aims to revitalize the space, making it a welcoming and beautiful home that honors its surroundings.