Elmwood Pk. addition

Type: Residential

Location: Elmwood Park

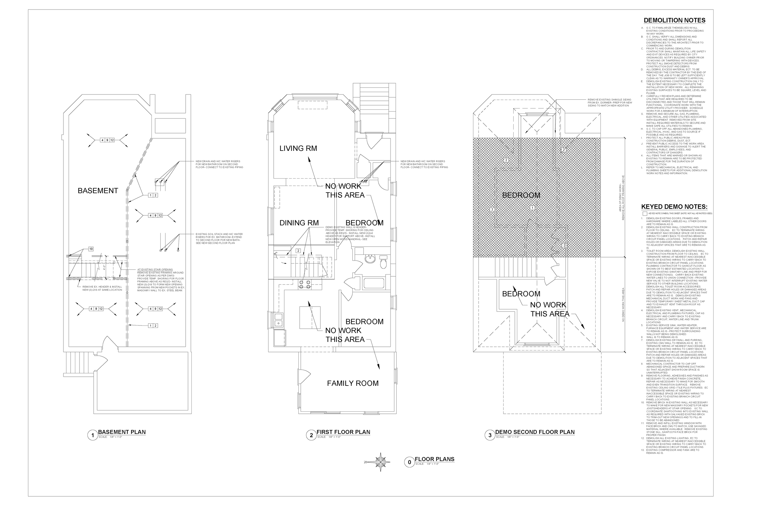
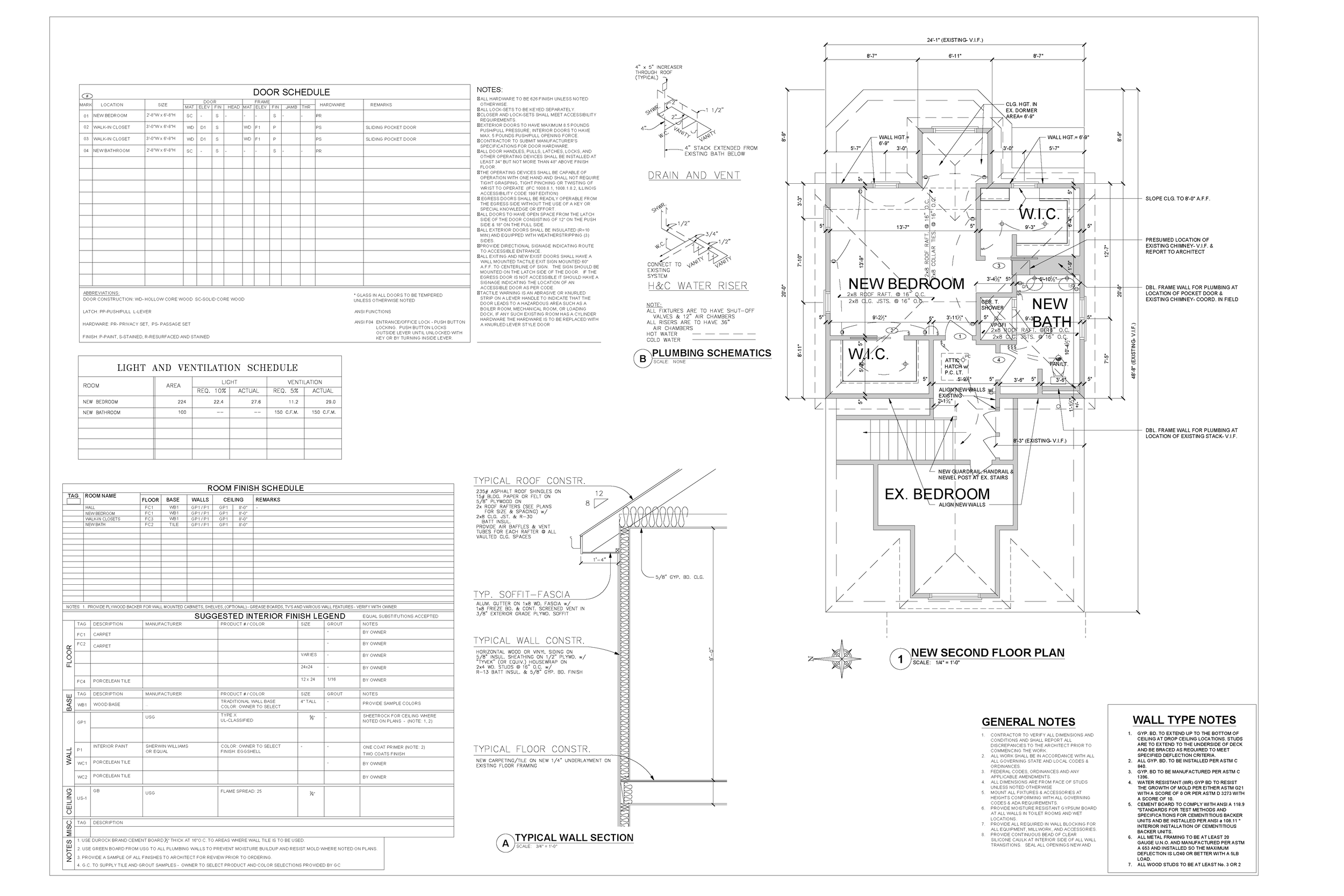
This project encompasses a thorough interior renovation paired with the construction of a second-floor addition, significantly expanding the living space of a classic bungalow in Elmwood Park. The focus of the renovation will be on maintaining the distinctive features of the home, such as its architectural integrity and charm, while seamlessly integrating modern amenities that align with contemporary lifestyles. This balance between preserving the home's unique qualities and upgrading its functionality will create a welcoming and efficient living environment.