Fargo
Type: Residential
Location: Chicago
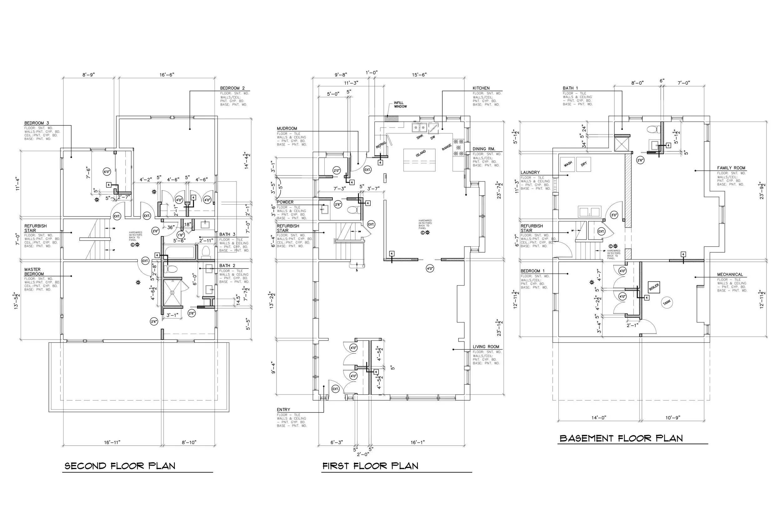
Description: 2,974 sq. ft. Gut Re-hab (in progress)
Type: Residential
Location: Chicago
Description: 2,974 sq. ft. Gut Re-hab (in progress)